- Sie haben noch keine Artikel in Ihrem Warenkorb.
Startseite » Speichertechnik » Hygienespeicher » ohne Wärmetauscher » Hygiene-Kombispeicher KE 500 ohne Wärmetauscher mit 90° Anschlüsse
Hygiene-Kombispeicher KE 500 mit Edelstahl-Wellrohr-Wärmetauscher und E-Stab-Wicklung
Dieser TWL Hygiene-Kombispeicher verfügt über einen großzügig dimensionierten Edelstahlwellrohr-Wärmetauscher für optimale, hygienische Warmwasserbereitung. Der Wärmeaustauscher ist mittels einer Flanschplatte und Dichtung oben in den Speicher isoliert montiert und könnte zu Kontrollzwecken wieder ausgebaut werden. Es ist aus hochwertigem Edelstahl gefertigt und so konzipiert, dass durch das einströmende Kaltwasser zuerst der untere Bereich des Pufferspeichers abgekühlt wird. Zusätzlich ist der Wärmetauscher unterbrochen, sodass die Möglichkeit besteht einen Heizstab zu montieren. Der Anschluss für den Heizstab beträgt 1 1/2".
Die Hygienespeicher sind aus Qualitätsstahl S235JR+AR nach DIN 4753 u. DIN EN 12897 gefertigt. Die Behälter sind innen roh, außen grundiert und verfügen über viele Anschlussmöglichkeiten.- Muffenanordnung 90°
- Betriebsdruck Pufferspeicher 4,5 bar
- Betriebstemperatur Pufferspeicher 0-95°C
- Edelstahl-Wellrohr-Wärmeaustauscher 5,8 qm
- zulässiger Druck Trinkwasser-Wärmetauscher 10,0 bar
- Schüttleistung (WW mit 45°) ** 221 Ltr.
** bei 24 kW Kesselleistung, 65°C Speichertemperatur und 10°C Kaltwassertemperatur
Die ÖkoLine Isolierungen bestehen aus einer intelligenten Anordnung verschiedener Isolationswerkstoffe an unterschiedlichen Stellen. Dies verbessert die Wärmedämmeigenschaften erheblich. Die Isolierungen sind innen mit keilförmigen Einschnitten versehen, um das Dämmmaterial flexibel zu gestalten und eine leichte Montage zu gewährleisten. Speicherseitig sind die Isolierungen mit einer 20 mm Polyesterfaservlies-Einlage versehen. Dadurch erhält die Isolierung ihre Paßgenauigkeit am Behälter und einen optimalen Abschluß, der jeglichen Kamineffekt verhindert. Eine problemlose Montage ist vor der Montage der Rohre jederzeit möglich. Die Isolierungen sind mit einem formschönen Mantel verkleidet und lassen sich mittels Reißverschluß verschließen.
Neben den sehr guten Dämmeigenschaften und den geringen Wärmestillstandsverlusten zeichnen sich die ÖkoLine Isolierungen besonders durch die problemlose Montage in der kalten Jahreszeit aus. Häufig ist das Ergebnis einer kräftefordernden, zeitaufwändigen Montage einer Dämmung, daß die Isolierung platzt oder der Reißverschluß beschädigt wird. Dies ist bei der ÖkoLine Isolierung nicht der Fall. Durch die konsequente Produktweiterentwicklung durch den Hersteller, erzielen die ÖkoLine Isolierungen nicht nur eindeutig bessere Wärmestillstandsverluste als Vliesisolierungen, sondern auch ein hervorragendes Preis-Leistungs-Verhältnis.
Zum Vergleich:
Fertigung:
- Behälter innen roh, außen schwarz grundiert.
- Aus hochwertigem Qualitätsstahl S235JR+AR.
- Nach DIN 4753 und Euronorm EN 12897 hergestellt.
Trinkwasser-Aufbereitung:
Der Trinkwasser-Wärmetauscher aus hochwertigem Edelstahl-Wellrohr (Werkstoff-Nr. 1.4404 bzw. AISI 316L) ist eingeflanscht und elektrisch isoliert. Dadurch wird eine Spannungskorrosion ausgeschlossen! Obendrein ist keine Magnesium-Schutzanode nötig, welche im Trinkwasserspeicher mit der Zeit am Boden recht viel Schlamm ablagern.
Der Edelstahl-Wärmetauscher muß vor Einspülungen von Eisen- und Rostpartikeln geschützt werden, da diese zu Fremdrost und Lochfraß führen können. Daher empfehlen wir in jedem Zulauf des Frischwassers zu den Hygienespeichern ein Feinfilter mit austauschbarem Filterelement mit 90 µm Porengröße einzubauen.
- Tauscheroberfläche: 5,8 qm
- Inhalt: 29 Liter
Vorteile auf einem Blick:
- Fast keine Legionellenbildung
- Wartungsarbeiten für Reinigung und Anode entfallen
- Keine Steuerung oder Pumpe zur Warmwasserbereitung nötig
- System wesentlich leistungsfähiger als herkömmliche Kombispeicher (Tank in Tank).
- Hohe Schüttleistung
- unterbrochener Wärmetauscher ermöglicht den Einsatz eines Elektro-Heizstabs
- ausbauen des Wärmetauschers möglich
- elektrisch getrennter Wärmetauscher, verhindert Spannungskorrosion
- galvanische Ströme ausgeschlossen
- elektrisch isolierte Flanschdurchführungen
- geeignet für 10 bar Betriebsdruck
- innovative Bauweise verhindert Kalkablagerungen
- große Tauscherfläche für beste Schüttleistung
- optimales Schichtverhalten für beste Solarerträge
- hygienisch absolut unbedenklich
- optimierter Wärmetauscher für Solaranlagen
Isolierungsarten:
Die ÖkoLine Isolierungen bestehen aus einer intelligenten Anordnung verschiedener Isolationswerkstoffe an unterschiedlichen Stellen. Dies verbessert die Wärmedämmeigenschaften erheblich. Die Isolierungen sind innen mit keilförmigen Einschnitten versehen, um das Dämmmaterial flexibel zu gestalten und eine leichte Montage zu gewährleisten. Speicherseitig sind die Isolierungen mit einer 20 mm Polyesterfaservlies-Einlage versehen. Dadurch erhält die Isolierung ihre Paßgenauigkeit am Behälter und einen optimalen Abschluß, der jeglichen Kamineffekt verhindert. Eine problemlose Montage ist vor der Montage der Rohre jederzeit möglich. Die Isolierungen sind mit einem formschönen Mantel verkleidet und lassen sich mittels Reißverschluß verschließen.Neben den sehr guten Dämmeigenschaften und den geringen Wärmestillstandsverlusten zeichnen sich die ÖkoLine Isolierungen besonders durch die problemlose Montage in der kalten Jahreszeit aus. Häufig ist das Ergebnis einer kräftefordernden, zeitaufwändigen Montage einer Dämmung, daß die Isolierung platzt oder der Reißverschluß beschädigt wird. Dies ist bei der ÖkoLine Isolierung nicht der Fall. Durch die konsequente Produktweiterentwicklung durch den Hersteller, erzielen die ÖkoLine Isolierungen nicht nur eindeutig bessere Wärmestillstandsverluste als Vliesisolierungen, sondern auch ein hervorragendes Preis-Leistungs-Verhältnis.
Zum Vergleich:
Wir haben einen 1000 Liter Speicher mit 90 mm fest aufgeschäumter PU-Hartschaum Isolierung getestet und mit einem baugleichen Behälter mit 120 mm abnehmbarer ÖkoLine-B Isolierung verglichen, das Ergebnis ist beeindruckend:
PU-Hartschaum: 2,67 kWh/24 h Wärmeverlust
ÖkoLine-B: 1,91 kWh/24 h Wärmeverlust
PU-Hartschaum: 2,67 kWh/24 h Wärmeverlust
ÖkoLine-B: 1,91 kWh/24 h Wärmeverlust
Bitte wählen Sie die Isolierung:
ÖkoLine-B Isolierung
Bereitschaftswärmeaufwand: 1,50 kWh/24 h
Warmhalteverlust: 62,5 W
Durchmesser mit Isolierung: 890 mm
Höhe mit Isolierung: 1820 mm
Gewicht Isolierung: 13 kg
Warmhalteverlust: 62,5 W
Durchmesser mit Isolierung: 890 mm
Höhe mit Isolierung: 1820 mm
Gewicht Isolierung: 13 kg
ÖkoLine-C Isolierung
Bereitschaftswärmeaufwand: 2,15 kWh/24 h
Warmhalteverlust: 89,6 W
Durchmesser mit Isolierung: 850 mm
Höhe mit Isolierung: 1770 mm
Gewicht Isolierung: 12 kg
Warmhalteverlust: 89,6 W
Durchmesser mit Isolierung: 850 mm
Höhe mit Isolierung: 1770 mm
Gewicht Isolierung: 12 kg
Ohne Isolierung
für bauseitige Isolierung oder Betrieb ohne Isolierung
Hersteller:
TWL-Technologie GmbH, Im Gewerbegebiet 2-12, 92271 Freihung, Deutschland, vertrieb@twl-technologie.de
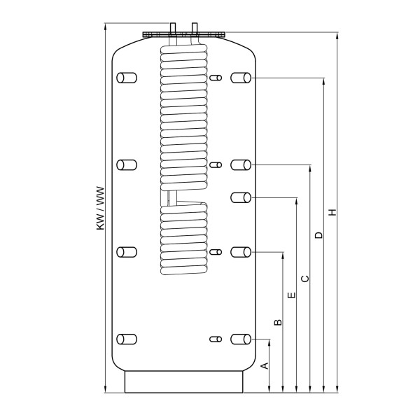
Hygiene-Kombispeicher mit 90° Muffenanordnung
500 bis 1000 Liter - Typ KE, KER, KER-2Abmessungen und technische Daten:
| Bezeichnung * | 500 | 800 | 1079 | 1085 | |
| Durchmesser ohne Isolierung | mm | 650 | 790 | 790 | 850 |
| Höhe ohne Isolierung | mm | 1725 | 1830 | 2040 | 2020 |
| Kippmaß ohne Isolierung | mm | 1756 | 1868 | 2074 | 2064 |
| Glattrohr-Wärmetauscher (unten) | m² | 2,1 | 2,8 | 3,2 | 3,2 |
| Inhalt Rohrschlange (unten) | Ltr. | 13,1 | 17,4 | 20,1 | 20,2 |
| Glattrohr-Wärmetauscher (oben) | m² | 1,4 | 1,9 | 2,1 | 2,1 |
| Inhalt Rohrschlange (oben) | Ltr. | 8,8 | 12,1 | 13,4 | 13,5 |
| zulässiger Druck | bar | 4,5 (Pufferspeicher) / 16,0 (Glattrohr-Wärmetauscher) | |||
| zulässige Temperatur | °C | 0 - 95 (Pufferspeicher) / 0 - 110 (Glattrohr-Wärmetauscher) | |||
| Edelstahl-Wellrohr-Wärmetauscher | m² | 5,8 (Trinkwasser-Wärmetauscher) | |||
| Inhalt Rohrschlange | Ltr. | 29,2 (Trinkwasser-Wärmetauscher) | |||
| zulässiger Druck | bar | 10,0 (Trinkwasser-Wärmetauscher) | |||
| zulässige Temperatur | °C | 0 - 110 (Trinkwasser-Wärmetauscher) | |||
| Schüttleistung (WW mit 45 °C) ** | Ltr. | 221 | 353 | 405 | 420 |
| Gewicht Typ KE | kg | 122 | 147 | 157 | 169 |
| Gewicht Typ KER | kg | 158 | 195 | 212 | 224 |
| Gewicht Typ KER-2 | kg | 178 | 231 | 251 | 263 |
Anschlussmaße:
| Bezeichnung * | 500 | 800 | 1079 | 1085 | ||
| A | Höhe | mm | 275 | 295 | 295 | 320 |
| Anschluss | IG | Rp 1 1/2" | Rp 1 1/2" | Rp 1 1/2" | Rp 1 1/2" | |
| Fühler | IG | Rp 1/2" | Rp 1/2" | Rp 1/2" | Rp 1/2" | |
| B | Höhe | mm | 1055 | 705 | 775 | 775 |
| Anschluss | IG | Rp 1 1/2" | Rp 1 1/2" | Rp 1 1/2" | Rp 1 1/2" | |
| Fühler | IG | Rp 1/2" | Rp 1/2" | Rp 1/2" | Rp 1/2" | |
| C | Höhe | mm | 1055 | 1115 | 1255 | 1235 |
| Anschluss | IG | Rp 1 1/2" | Rp 1 1/2" | Rp 1 1/2" | Rp 1 1/2" | |
| Fühler | IG | Rp 1/2" | Rp 1/2" | Rp 1/2" | Rp 1/2" | |
| D | Höhe | mm | 1445 | 1525 | 1735 | 1690 |
| Anschluss | IG | Rp 1 1/2" | Rp 1 1/2" | Rp 1 1/2" | Rp 1 1/2" | |
| Fühler | IG | Rp 1/2" | Rp 1/2" | Rp 1/2" | Rp 1/2" | |
| E | Höhe | mm | 860 | 910 | 1015 | 1005 |
| Anschluss | IG | Rp 1 1/2" | Rp 1 1/2" | Rp 1 1/2" | Rp 1 1/2" | |
| VL 1 (WT unten) | Höhe | mm | 755 | 825 | 860 | 885 |
| Anschluss | IG | Rp 1" | Rp 1" | Rp 1" | Rp 1" | |
| RL 1 (WT unten) | Höhe | mm | 275 | 295 | 295 | 320 |
| Anschluss | IG | Rp 1" | Rp 1" | Rp 1" | Rp 1" | |
| VL 2 (WT oben) | Höhe | mm | 1445 | 1525 | 1735 | 1690 |
| Anschluss | IG | Rp 1" | Rp 1" | Rp 1" | Rp 1" | |
| RL 2 (WT oben) | Höhe | mm | 1125 | 1205 | 1390 | 1345 |
| Anschluss | IG | Rp 1" | Rp 1" | Rp 1" | Rp 1" | |
| H | Höhe | mm | 1675 | 1780 | 1990 | 1970 |
| Anschluss | IG | Rp 1" | Rp 1" | Rp 1" | Rp 1" | |
| KW / WW (WT Trinkwasser) | Höhe | mm | 1725 | 1830 | 2040 | 2020 |
| Anschluss | AG | Rp 3/4" | Rp 3/4" | Rp 3/4" | Rp 3/4" | |
Isolierungen:
| Bezeichnung * | 500 | 800 | 1079 | 1085 | |
| Isolierung ÖkoLine-C | C | C | C | C | |
| Bereitschaftswärmeaufwand | kWh/24 h | 2,15 | 2,49 | 2,92 | 3,14 |
| Warmhalteverlust | W | 89,6 | 103,8 | 121,7 | 130,8 |
| Durchmesser mit Isolierung | mm | 850 | 990 | 990 | 1050 |
| Höhe mit Isolierung | mm | 1770 | 1870 | 2080 | 2060 |
| Gewicht | kg | 12 | 15 | 17 | 18 |
| Isolierung ÖkoLine-B | B | B | B | B | |
| Bereitschaftswärmeaufwand | kWh/24 h | 1,5 | 1,75 | 1,91 | 2,36 |
| Warmhalteverlust | W | 62,5 | 72,9 | 79,6 | 98,3 |
| Durchmesser mit Isolierung | mm | 890 | 1030 | 1030 | 1090 |
| Höhe mit Isolierung | mm | 1820 | 1920 | 2130 | 2110 |
| Gewicht | kg | 13 | 16 | 18 | 19 |
* Die Bezeichnung spiegelt nicht den exakten Inhalt der Speicher wider.
** Bei 24 kW Kesselleistung, 65 °C Speichertemperatur und 10 °C Kaltwassertemperatur.
Änderungen und Irrtümer vorbehalten.
ÖkoLine-B Isolierung
Bereitschaftswärmeaufwand: 1,50 kWh/24 h
Warmhalteverlust: 62,5 W
Durchmesser mit Isolierung: 890 mm
Höhe mit Isolierung: 1820 mm
Gewicht Isolierung: 13 kg
![]() Bei 1.000 Liter Speichervolumen | Die ÖkoLine-B Isolierung besteht aus 100 mm Neopor (graues, spezialbeschichtetes Polystyrol) und 20 mm Polyesterfaservlies. Mit dieser Isolierung und der Verwendung unserer Speicher Isolierkappen für die Dämmung der nicht verwendeten Anschlüsse erreichen Sie die Effizienzklasse B. Diese Isolierung hat ca. 50% weniger Wärmestillstandsverluste gegenüber herkömmlichen Weichschaum- oder Vliesisolierungen. Außerdem zeichnet sie sich durch ihre zusätzliche Bodendämmung aus und das bei einem geringen Gewicht von nur 15 kg/m³. |
ÖkoLine-C Isolierung
Bereitschaftswärmeaufwand: 2,15 kWh/24 h
Warmhalteverlust: 89,6 W
Durchmesser mit Isolierung: 850 mm
Höhe mit Isolierung: 1770 mm
Gewicht Isolierung: 12 kg
![]() Bei 1.000 Liter Speichervolumen | Die ÖkoLine-C Isolierung besteht aus 80 mm Neopor (graues, spezialbeschichtetes Polystyrol) und 20 mm Polyesterfaservlies. Mit dieser Isolierung und der Verwendung unserer Speicher Isolierkappen für die Dämmung der nicht verwendeten Anschlüsse erreichen Sie die Effizienzklasse C. Diese Isolierung hat ca. 30% weniger Wärmestillstandsverluste gegenüber herkömmlichen Weichschaum- oder Vliesisolierungen. Außerdem zeichnet sie sich durch ihre zusätzliche Bodendämmung aus und das bei einem geringen Gewicht von nur 15 kg/m³. |
Kundenrezensionen
Leider sind noch keine Bewertungen vorhanden. Seien Sie der Erste, der das Produkt bewertet.
Sie müssen angemeldet sein um eine Bewertung abgeben zu können. Anmelden



